
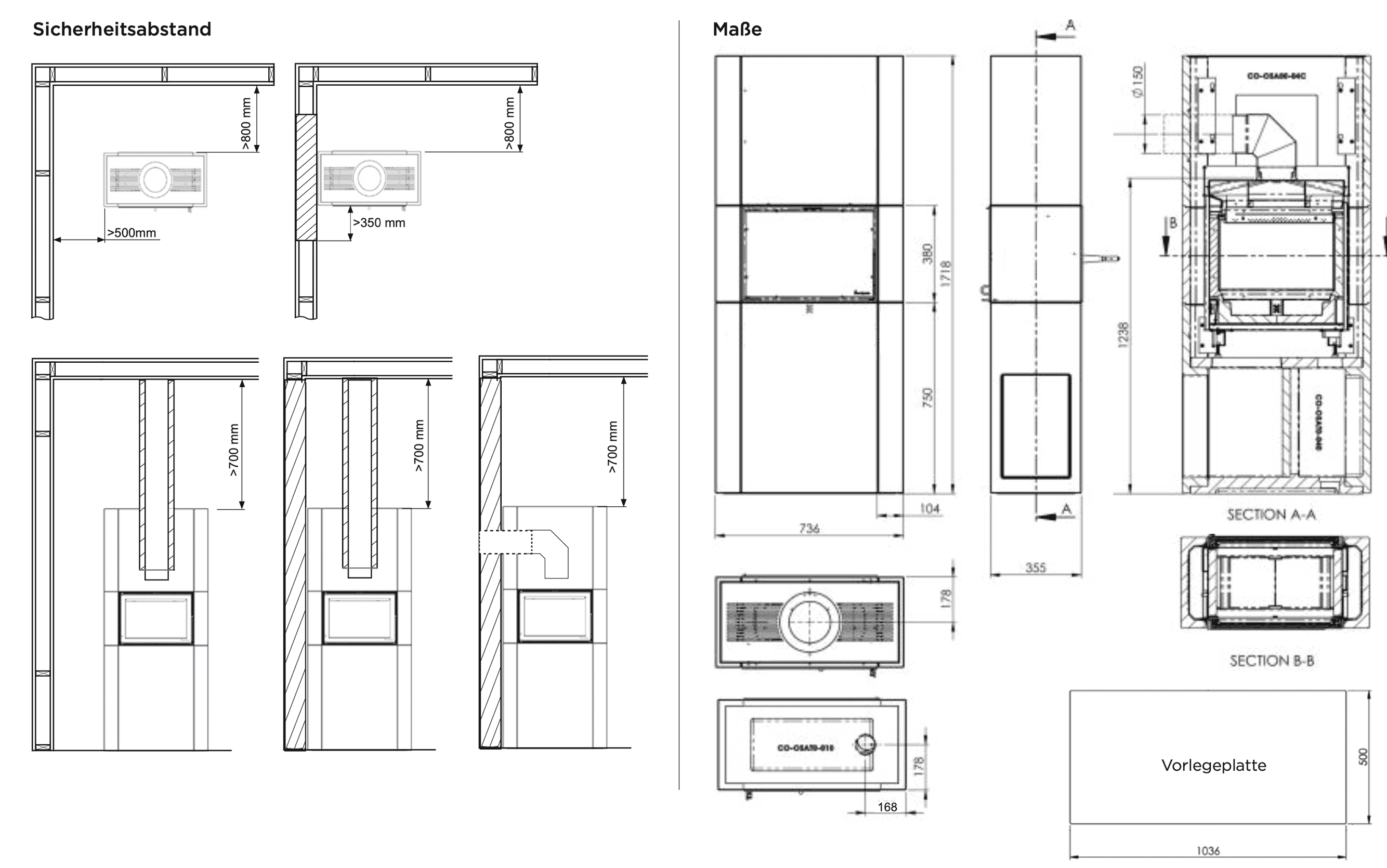
Maße (H/B/T mm):
| 1720 / 736 / 355
|
*Die Oberflächen der Verkleidungen in Beton ShapeStone eignen sich ohne weitere Oberflächenveredlung nicht als Sichtbeton. Wir haben die hier abgebildeten Produkte weiß gestrichen.

Maße (H/B/T mm):
| 1720 / 736 / 355
|

Zubehör
803038 Vorlegeplatte Glas klar
807368 Powerstone Speicherblock 59kg (nur bei Rauchrohranschluss nach oben möglich)
805971 Holzgriff
803782 Holzgriff B Seite
806815 Aschebox
808681 Zuluftset (Durchmesser 80 mm)
804141 Wanddurchführung Zuluft
803161 Northstar Betonfarbe 2,2kg
Dieses Produkt ist für hochisolierte Wände nicht zugelassen
Artikelnummer: 202504
Listenpreis : 5.530 €
Der Listenpreis ist der empfohlener Verkaufspreis des Herstellers inkl. 19% MwSt. Gerne machen wir Ihnen ein individuelles Angebot unter Berücksichtigung benötigter Teile für die Montage und gewünschtes Zubehör:


Unverbindliche Preisanfrage
Kaminanlagen : Nordpeis Osaka T
